HappyTily M
33 m²
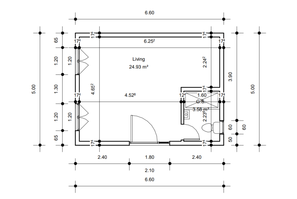
Compartimentare
Compartimentarea eficientă a modulului Happy Tily M îți permite să profiți la maximum de fiecare metru pătrat, făcându-l ideal pentru un stil de viață confortabil.
Cu un living generos de 24.93mp, vei avea un loc primitor și confortabil pentru a petrece timpul alături de familie și prieteni. Acest spațiu deschis poate fi amenajat cu ușurință într-un colț de relaxare, zonă de divertisment sau chiar și un birou confortabil.
Bucătăria integrată în living adaugă funcționalitate și stil, permițându-ți să pregătești mese delicioase și să interacționezi cu ceilalți în timp ce gătești. Designul modern al bucătăriei este însoțit de echipamente și finisaje de înaltă calitate, creând un spațiu practic și estetic plăcut.
Baia spațioasă de 3.58mp oferă un sanctuar de relaxare și intimitate. Fie că îți dorești o baie lungă și revigorantă sau doar un duș rapid, vei beneficia de tot confortul și utilitățile necesare. Finisajele moderne și accentele elegante completează atmosfera relaxantă și rafinată a băii.
Componente Modul
Kit Căsuță
- Structură din lemn certificat
- Panouri SIP 174mm
- Plan arhitectural
- Manual de asamblare
- Accesorii pentru montaj
Căsuță la ROȘU
- Structură din lemn certificat
- Panouri SIP 174mm
- Plan arhtectural
- Accesorii pentru montaj
- Manoperă
Căsuță la GRI
- Structură din lemn certificat
- Panouri SIP 174mm
- Plan arhitectural
- Accesorii pentru montaj
- Acoperiș (tablă + accesorii)
- Exterior (tablă + lambriu lemn)
- Tâmplărie PVC Gri Antracit (Ușă acces + 2 ferestre)
- Manoperă
Căsuță la Cheie
- Structură din lemn certificat
- Panouri SIP 174mm
- Plan arhitectural
- Accesorii pentru montaj
- Acoperiș (tablă + accesorii)
- Exterior (tablă + lambriu lemn)
- Tâmplărie PVC Gri Antracit (Ușă acces + 2 ferestre)
- Baie – gresie + faianță
- Parchet laminat
- Pachet electric
- Pachet sanitare
- Instalație bucătărie (racordare la apă)
- Manoperă
Opțiuni extra

marius.petrea@happytiny.ro
www.happytiny.ro
+40 751 504 018
+40 754 808 605
+40 754 322 429
Calea Mărășești nr. 11
Bacău
600018












